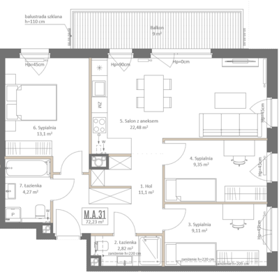
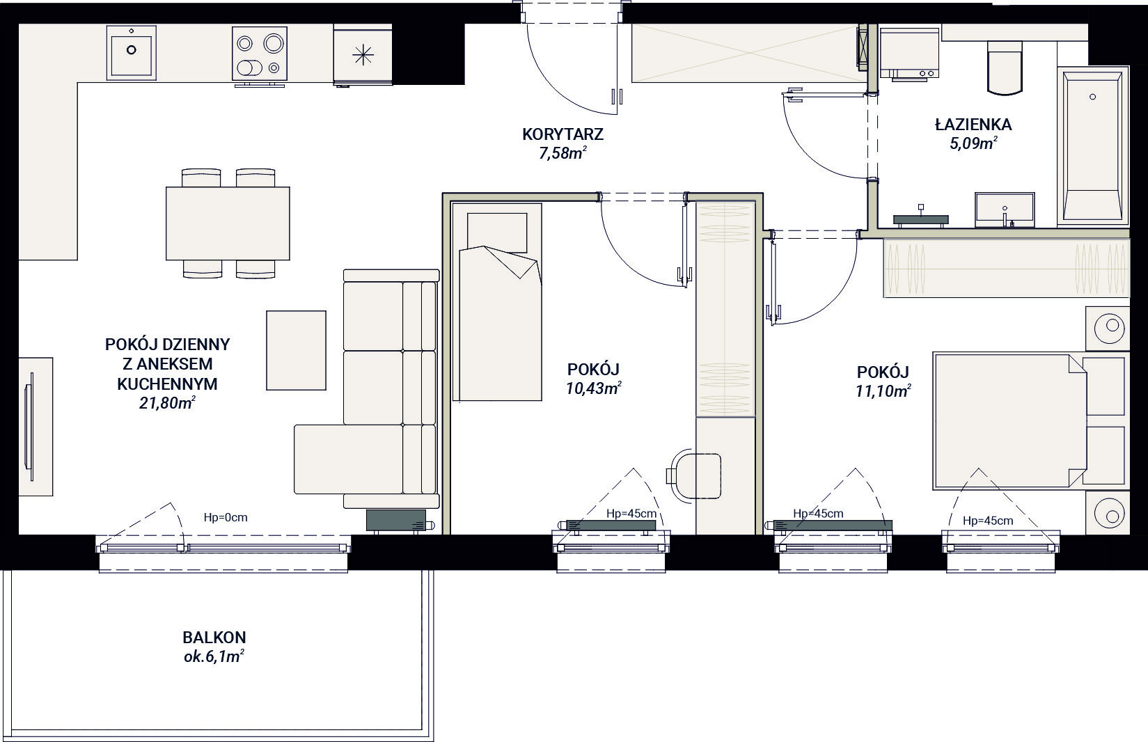
Luna Mieszkanie nr 7 / 1 piętro

Liczba pokoi: 3
Pow. użytkowa: 55.9 m2
Balkon: 6,10 m2
Piętro: 1
Data odbioru: IV kw. 2025
Cena za m2: sprzedane
Cena: sprzedane
Historia

Data

Zakres

Cena

2025-09-11 602 000 zł

Zapytaj o mieszkanie!

Skorzystaj z formularza, a nasi doradcy oddzwonią w ciągu kilku godzin

Agnieszka Skierka
Specjalista ds. sprzedaży
603 510 839

Komercjalizacja
Wynajem lokali
607 607 464
* pola wymagane
* pola wymagane

Znajdź podobne mieszkanie

mieszkania o zbliżonej powierzchni

zobacz pełną ofertę